Burst House
-
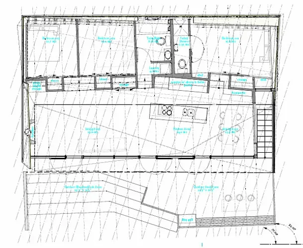
Burst*003 (for systemarchitects)
North Haven, NSWLaser-cut kit project built from 1100 individualised marine-grade plywood parts, clad in rubberised paint. Winner of the NSW RAIA Wilkinson Award for best residential project, and re-built at the Museum of Modern Art (NYC) in 2008. Designed by systemarchitects with construction and site administration by Chris Knapp.
-
Completed 2005.
-
Installation by - @studioworkshop
Photography - Floto+Warner.

